Меню
Контакт-центр8(915)427-97-72
8(995)127-71-91
83812( 382128)

Альфа 3

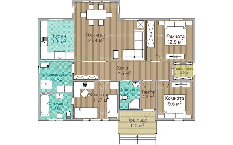
Альфа 3 10 х 13 109,54 м²
Характеристики
  • Общая площадь: 109,54 м2
  • Площадь застройки: 123,85 м2
  • Размеры: 10 х 13 м
  • Срок строительства: 15 - 20 дней
  • 2
    Санузла
  • 3
    Спальни

Выберите технологию

Выберите комплектацию

4069800 руб.
4879801 руб.
5559800 руб.
Цена
4 069 800 руб.
Цены в вашем регионе могут отличаться от представленных на сайте

Одноэтажный дом – выбор для тех, кто не хочет подниматься и спускаться по лестницам. Когда все помещения расположены на одном уровне, это удобно для семей, где есть маленькие дети, пожилые люди. Альфа 3 привлекает выразительной внешностью и удобной планировкой. В доме предусмотрено все для комфортного проживания большой семьи: три изолированные друг от друга спальни, гарантирующие покой домочадцам, две ванных комнаты, котельная, в которой можно без труда разместить прачечную, а также кладовая – залог порядка в доме. Огромная совмещенная со столовой гостиная, которая благодаря большому количеству окон всегда будет наполнена светом, станет излюбленным местом сбора всей семьи.

Характеристики
  • Общая площадь: 109,54 м2
  • Площадь застройки: 123,85 м2
  • Размеры: 10 х 13 м
  • Срок строительства: 15 - 20 дней
Теплый дом
Теплый дом +
Посмотреть полное описание
Аляска
Тепловой контур под отделку Дом "под ключ" Энергоэффективный дом
Фундамент Ленточный монолитный Фундамент в подарок Свайный винтовой ниже глубины промерзания Фундамент в подарок Свайный забивной железобетонный ниже глубины промерзания
Усиленная конструкция пола, настил пола - доска 35 мм Усиленная конструкция пола, настил пола - доска 35 мм
Усиленная конструкция стен и перекрытий Усиленная конструкция стен и перекрытий
Многослойная вентилируемая конструкция стен
Утепление Стены 150 мм; Пол 150 мм; Потолок 150 мм Утепление Стены 150 мм; Пол 150 мм; Потолок 150 мм Утепление Стены 200 мм; Пол 200 мм; Потолок 200 мм; Перегородки 100 мм
Отделка дома снаружи вагонкой Отделка дома снаружи сайдингом
Отделка стен и потолка вагонкой Отделка стен и потолка вагонкой
Гидроизоляция санузлов с подготовкой под укладку плитки Гидроизоляция санузлов с подготовкой под укладку плитки
Окна пластиковые однокамерные Окна пластиковые однокамерные Окна пластиковые двухкамерные
Устройство системы вентиляции кухни и санузлов
Входная дверь металлическая Входная дверь металлическая
Обработка конструкции пола огнебиозащитой Обработка конструкции пола огнебиозащитой
Кровля профлист оцинкованный Кровля Металлочерепица Кровля Металлочерепица
4 069 800 руб.
4 879 801 руб.
5 559 800 руб.
* действителен при покупке в комплектации "Теплый дом+", "Аляска", "4 сезона", "4 сезона+" и "Зимняя"
Более подробную информацию уточняйте у менеджеров по телефону +7 495 445-90-85 или на наших выставочных площадках.
Характеристики
  • Общая площадь: 109,54 м2
  • Площадь застройки: 123,85 м2
  • Размеры: 10 х 13 м
  • Срок строительства: 15 - 20 дней
  • 2
    Санузла
  • 3
    Спальни

Выберите технологию

Выберите комплектацию

Цена
4 069 800 руб.
Цены в вашем регионе могут отличаться от представленных на сайте

Отзывы о коттеджах

Елена, дом "Уэльс" 12 Мая 2023
Хочу выразить свою благодарность от нашей семьи менеджеру Суховой Светлане Львовне, в 2021 году мы обратились в «Зодчий» . 
Прошли немало строительных компаний, но Светлана  Львовна сразу расположила к себе профессиональным подходом и очень грамотно подвела нас к определенному проекту, который подходил именно нам. Она смогла нас убедить , что мы построим дом «нашей мечты» именно в «Зодчем». 
Было очень легко решать с ней непростые вопросы, которые мы бы не смогли решить самостоятельно. 
Уже почти два года мы живем в нашем доме. И даже по истечении этого времени , я могу позвонить и проконсультироваться в интересующих меня вопросах, всегда приветлива и со знаем своего дела ответит на все мои вопросы. 
Спасибо за наш дом. 
Хочу также отметить  архитектора  Поверину Надежду  Владимировну- профессионал своего дела. Огромное спасибо ей в участии нашего  проекта.
Нина, "Балчуг" 19 Мая 2023
Спасибо Суховой Светлане Львове за помощь в выборе и строительстве дома и бани. А также за доброе и внимательно отношение к своим клиентам. Так же большое спасибо строительной бригаде за быструю и качественную работу
Гражданин М., зимний дом Велес 30 Июля 2015
По результатам проживания в осеннее-зимнее время, дом показал себя с наилучшей стороны по энергосбережению,практически при низких температурах не требует значительных энергоресурсов,эксплуатация дешевле 2-х комнатной квартиры, что не столь важно в нынешнее время.Собран дом качественно и быстро, что за 1 год эксплуатации подтвердилось на 100%! Спасибо!
Обратный звонок
* заполните обязательно